Добро пожаловать на http://vipplan.ru

Випплан Апшеронск - это тысячи проектов домов в нашем каталоге!

Вы всегда сможете найти для себя проект дома вашей мечты! Даже если этого не случилось, мы готовы в любую минуту предложить проект индивидуального дома.

Забыли пароль?
Вы еще не регистрировались?

Перейдите по ссылке ниже на страницу регистрации.

Регистрация...

Внимание!!!

В проектную документацию могут быть внесены изменения любой сложности, в соответствии в Вашими пожеланиями!

Полезные статьи

Выбор участка для строительства дома

Если вы решили приобрести участок земли и построить на нем дом или дачу. То данная статья специально для вас. А так же мы поможем вам в выборе проекта для выбранного вами участка....

Как сделать мансардную крышу

Мансарда - обеспечивает дополнительную жилую площадь одно- или двухуровневой постройке за счет подкровельного пространства и, благодаря видимым элементам конструкции крыши, выполняет немаловажную эстетическую функцию. Дома с мансардой достаточно распространены в Краснодарском крае благодаря своей привлекательности и неповторимости. ...

Проекты домов и коттеджей > Каталог проектов домов > Проект одноэтажного жилого дома Vg160

Проект одноэтажного жилого дома Vg160

Проект одноэтажного жилого дома
Зарегистрируйтесь

Проект № Vg160


Техническое описание
Общая площадь: 106 м2
Жилая площадь: 70 м2
Высота здания: 7.23 м
Размеры дома: 15м×16м
Кол-во комнат: 4
Цокольный этаж: нет
Гараж: нет
Мансарда: нет

Kонструкция
Отделка дома: Фасадная штукатурка, клинкерная плитка, деревянные панели.

Архитектурный раздел
Конструктивный раздел
АР+КР - 48 000 (Со скидкой 20%)


Проект индивидуального одноэтажного  жилого дома  с размерами здания  
14,86 x 16,14 м. 
Наружная отделка  здания – фасадная штукатурка/ клинкерная плитка/ деревянные панели.
Фундамент - ленточный монолитный ( под несущими стенами )     
Наружные стены – газобетонные блоки с утеплителем пенополистерол, с отделкой фасадной штукатуркой, клинкерной плиткой и деревянными панелями. 
Внутренние стены  -  газобетонные блоки.
Перегородки из кирпича.
Снаружи вентканалы и дымоходы - клинкерная плитка.                                  
Перемычки - монолитные и сварные из профиля проката.
Перекрытие чердачное - по деревянным балкам с использованием теплошумоизоляционных материалов типа "URSA" в межбалочном пространстве.
Пол первого  этажа -  пол по грунту.
Крыша двухскатая.  Кровля – гибкая черепица.
Окна - металлопластиковые, выполненные по индивидуальному заказу.   
 
Технико-экономические показатели
 
Общая площадь помещений - 106,27 м2
Жилая площадь помещений - 70,4 м2
Этажность - 1
Высота здания - 7,23 м от отметки ур. земли до конька
 

Генплан застройки участка / Паспорт проекта 7000 руб / 10000 руб
Инженерный раздел (полный) 53000 руб
Смета на строительство 26500 руб
Теплотехнический расчет материалов стен Бесплатно
Стоимость проекта со незначительнми изменениями 57350 руб
Стоимость проекта со средними изменениями* 65300 руб
Стоимость проекта со значительными изменениями** 67400 руб

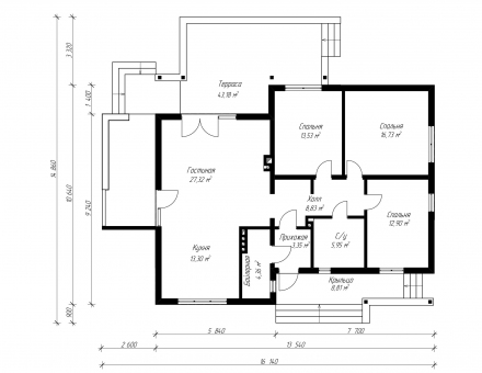
План первого этажа


Прихожая - 3,35 м2
Холл - 8,83 м2
Гостиная - 27,32 м2
Кухня - 13,30 м2
Бойлерная - 4,36 м2
Спальня - 17,53 м2
Спальня - 16,73 м2
Спальня - 12,90 м2
С/у - 5,95 м2
Крыльцо - 8,81 м2
Терасса - 43,18 м2
Проект одноэтажного жилого дома Проект одноэтажного жилого дома Проект одноэтажного жилого дома Проект одноэтажного жилого дома
Внесение изменений и привязка к участку строительства

В любой из проектов от компании VIPplan - Апшеронск по вашему желанию могут быть внесены изменения в материалы стен, материалы наружной отделки дома, а также будет произведена адаптация проекта под конкретный регион строительства (с учетом грунтов региона, геологических особенностей вашего участка и местных климатических условий) - БЕСПЛАТНО !!! (кроме проектов со скидкой и проектов наших партнеров).

Любой из проектов, размещенных на сайте apsheronsk.vipplan.ru мы можем выполнить из требуемых вам строительных материалов: ячеистый бетон (газобетон, пеноблок), керамоблок, кирпич, шлакоблок, бетонный блок, дерево (брус, клееный брус), каркасная технология (деревянный каркас, металлокаркас (ЛСТК)).

Фасад дома и его наружную отделку так же возможно выполнить с применением различных облицовочных материалов: структурной штукатурки, (с утеплителем и без), сайдингом (пластиковый или металлосайдинг), фиброплитами, кирпича.

 
6 Избранные
проекты

Доставка проектов по России: Москва (Московская область), Санкт-Петербург (Ленинградская область), Краснодар, Ростов-на-Дону, Ставрополь, Сочи, Волгоград, Новосибирск, Белгород, Брянск, Воронеж, Саратов, Хабаровск, Астрахань, Нальчик, Владикавказ, Екатеринбург, Тюмень, Самара, Нижний Новгород, Казань, Пермь, Уфа, Челябинск, Красноярск, Ханты-Мансийск, Иркутск, Курган, Оренбург, Омск, Томск, Барнаул, Новокузнецк, Кемерово, Абакан, Чита, Якутск, Южно-Сахалинск, Петропавловск-Камчатский и страны ближнего зарубежья: Белоруссия, Украина, Казахстан