Добро пожаловать на http://vipplan.ru

Випплан Апшеронск - это тысячи проектов домов в нашем каталоге!

Вы всегда сможете найти для себя проект дома вашей мечты! Даже если этого не случилось, мы готовы в любую минуту предложить проект индивидуального дома.

Забыли пароль?
Вы еще не регистрировались?

Перейдите по ссылке ниже на страницу регистрации.

Регистрация...

Внимание!!!

В проектную документацию могут быть внесены изменения любой сложности, в соответствии в Вашими пожеланиями!

Полезные статьи

Выбор проекта дома (площадь, этажность - 1 или 2 этажа)

Для того что бы выбрать проект дома, предварительно необходимо определиться, какой будет площадь будущего дома (решение зависит от количества человек, планирующих постоянно в нем проживать), количество спален, санузлов и ванных комнат, компоновка дома, одноэтажный, масардный или двухэтажный дом (зависит от площади участка и предпочтений будущих хозяев) ...

Системы утепления фасада

Основные тепловые потери происходят через стены, фундамент и крышу. Уменьшить их можно с помощью утеплителя, создав внутри дома оптимальный для жизни климат, с достаточно ровным температурным режимом и низкой влажностью....

Проекты домов и коттеджей > Каталог проектов домов > Уютный дом с мансардой Vg1359

Уютный дом с мансардой Vg1359

Уютный дом с мансардой
Зарегистрируйтесь

Проект № Vg1359


Техническое описание
Общая площадь: 90.24 м2
Жилая площадь: 67.43 м2
Высота здания: 7.68 м
Размеры дома: 7.48м×9.38м
Кол-во комнат: 4
Цокольный этаж: нет
Гараж: нет
Мансарда: есть

Kонструкция
Фундамент: Щелевой
Перекрытия: Деревянные балки
Материал стен: Газобетон

Архитектурный раздел
Конструктивный раздел
АР+КР - 44 000 (Со скидкой 20%)
Проект индивидуального одноэтажного жилого дома с мансардой с размерами здания в 7,48 x 9,38м. Наружная отделка здания - облицовочный кирпич (бежевый). Цоколь- отделка клинкерной плиткой. Вентканалы и дымоходы -отделка клинкерной плиткой в цвет облицовочного кирпича. Фундамент - стена в грунте ("щелевой"), монолитный, ж/б. Наружные стены дома: газобетонные блоки, минеральная вата, вентзазор, облицовочный кирпич. Внутренние стены: - газобетонные блоки. Перегородки: - ГКЛ на металлическом каркасе с использованием теплошумоизоляционных материалов в межкаркасном пространстве. Пол первого этажа - пол по грунту. Пол мансардного этажа - по деревянным балкам с использованием теплошумоизоляционных материалов типа "URSA" в межбалочном пространстве. Потолок мансардного этажа - по затяжкам стропильной системы. Крыша двускатная. Покрытие - металлочерепица. Перемычки - монолитные и сварные из профиля проката. Окна - металлопластиковые, выполненные по индивидуальному заказу. Лестница - деревянная, выполняется по индивидуальному заказу.
Генплан застройки участка / Паспорт проекта 7000 руб / 10000 руб
Инженерный раздел (полный) 50000 руб
Смета на строительство 25000 руб
Теплотехнический расчет материалов стен Бесплатно
Стоимость проекта со незначительнми изменениями 52750 руб
Стоимость проекта со средними изменениями* 59500 руб
Стоимость проекта со значительными изменениями** 61300 руб

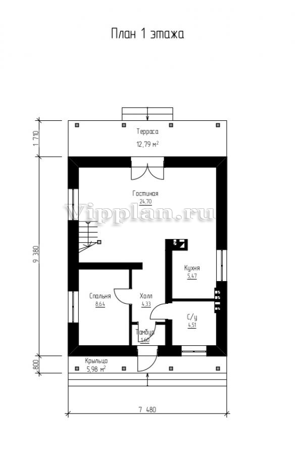
План первого этажа


Тамбур — 1,60 кв м
Холл — 4,33 кв м
Гостиная — 24,70 Спальня — 8,64 кв м
Кухня — 5,47 кв м
С/у — 4,51 кв м

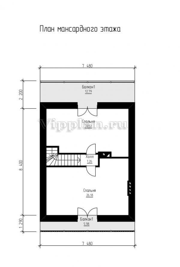
План мансардного этажа


Холл — 1,26 кв м
Спальня — 22,52 кв м
Спальня — 26,18 м Балкон — 12,79 кв м
Балкон — 5,98 кв м
Уютный дом с мансардой Уютный дом с мансардой Уютный дом с мансардой Уютный дом с мансардой

Модификации проектов

Внесение изменений и привязка к участку строительства

В любой из проектов от компании VIPplan - Апшеронск по вашему желанию могут быть внесены изменения в материалы стен, материалы наружной отделки дома, а также будет произведена адаптация проекта под конкретный регион строительства (с учетом грунтов региона, геологических особенностей вашего участка и местных климатических условий) - БЕСПЛАТНО !!! (кроме проектов со скидкой и проектов наших партнеров).

Любой из проектов, размещенных на сайте apsheronsk.vipplan.ru мы можем выполнить из требуемых вам строительных материалов: ячеистый бетон (газобетон, пеноблок), керамоблок, кирпич, шлакоблок, бетонный блок, дерево (брус, клееный брус), каркасная технология (деревянный каркас, металлокаркас (ЛСТК)).

Фасад дома и его наружную отделку так же возможно выполнить с применением различных облицовочных материалов: структурной штукатурки, (с утеплителем и без), сайдингом (пластиковый или металлосайдинг), фиброплитами, кирпича.

 
6 Избранные
проекты

Доставка проектов по России: Москва (Московская область), Санкт-Петербург (Ленинградская область), Краснодар, Ростов-на-Дону, Ставрополь, Сочи, Волгоград, Новосибирск, Белгород, Брянск, Воронеж, Саратов, Хабаровск, Астрахань, Нальчик, Владикавказ, Екатеринбург, Тюмень, Самара, Нижний Новгород, Казань, Пермь, Уфа, Челябинск, Красноярск, Ханты-Мансийск, Иркутск, Курган, Оренбург, Омск, Томск, Барнаул, Новокузнецк, Кемерово, Абакан, Чита, Якутск, Южно-Сахалинск, Петропавловск-Камчатский и страны ближнего зарубежья: Белоруссия, Украина, Казахстан