Добро пожаловать на http://vipplan.ru

Випплан Апшеронск - это тысячи проектов домов в нашем каталоге!

Вы всегда сможете найти для себя проект дома вашей мечты! Даже если этого не случилось, мы готовы в любую минуту предложить проект индивидуального дома.

Забыли пароль?
Вы еще не регистрировались?

Перейдите по ссылке ниже на страницу регистрации.

Регистрация...

Внимание!!!

В проектную документацию могут быть внесены изменения любой сложности, в соответствии в Вашими пожеланиями!

Полезные статьи

Купить готовый проект дома или заказать индивидуальный?

Перед началом строительства дома возникает необходимость в проекте дома и тут встает вопрос: Купить готовый проект дома или заказать индивидуальный на заказ? Каждый из вариантов по своему хорош и имеет как свои плюсы так и минусы...

Выбор бригады строителей в Апшеронске

Перед началом строительства дома перед будущим хозяином загородной недвижимости в Краснодарском крае обозначится несколько вариантов: обратиться в строительную компанию, специализирующуюся на малоэтажном коттеджном строительстве, воспользоваться услугами частной бригады; строить самому "своими руками"....

Проекты домов и коттеджей > Каталог проектов домов > Проект индивидуального таунхауса Vg1263

Проект индивидуального таунхауса Vg1263

Проект индивидуального таунхауса
Зарегистрируйтесь

Проект № Vg1263


Техническое описание
Общая площадь: 295.38 м2
Жилая площадь: 142.52 м2
Высота здания: 8.93 м
Размеры дома: 16.44м×17.24м
Кол-во комнат: 8
Цокольный этаж: нет
Гараж: нет
Мансарда: есть

Kонструкция
Фундамент: Ж/б сваи
Перекрытия: Монолитные перекрытия
Материал стен: Газобетон

Архитектурный раздел
Конструктивный раздел
АР+КР - 72 000 (Со скидкой 20%)
Проект индивидуального таунхауса с размерами здания 16,44 x 17,24 м. Наружная отделка здания – фасадная штукатурка. Фундамент – забивные ж/б сваи. Наружные стены – газобетонный блок, утеплитель -минвата, отделка фасадной штукатуркой. Внутренние стены и перегородки — газобетонный блок. Пол первого этажа - пол по грунту. Межэтажное перекрытие - ж/б монолитное. Перекрытие над гаражом - по деревянным балкам с использованием теплошумоизоляционных материалов в межбалочном пространстве. Крыша сложная. Кровля – битумная черепица. Окна - металлопластиковые
Генплан застройки участка / Паспорт проекта 7000 руб / 10000 руб
Инженерный раздел (полный) 147500 руб
Смета на строительство 73750 руб
Теплотехнический расчет материалов стен Бесплатно
Стоимость проекта со незначительнми изменениями 82600 руб
Стоимость проекта со средними изменениями* 104800 руб
Стоимость проекта со значительными изменениями** 110700 руб

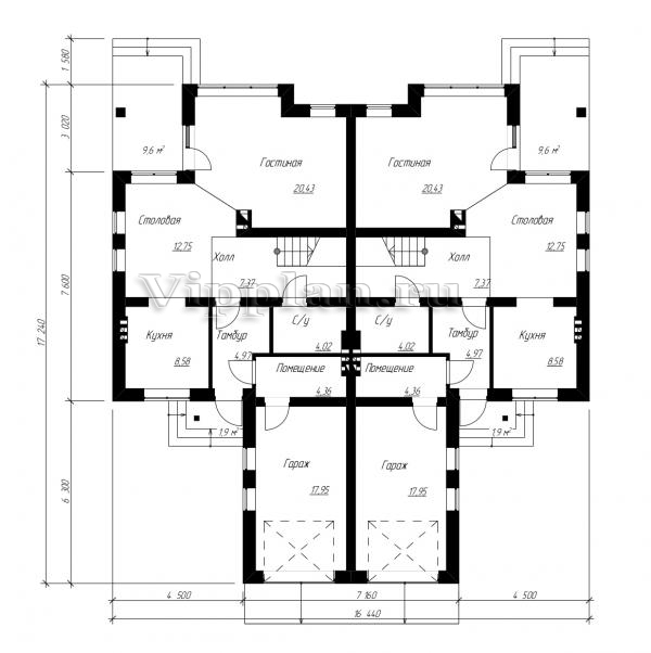
План первого этажа


Тамбур — 4,97 м2
Помещение — 4,36 м2
Гараж — 17,95 м2
Холл — 7,37 м2
С/у — 4,02 м2
Кухня — 8,58 м2
Столовая — 12,75 м2
Гостиная — 20,43 м2

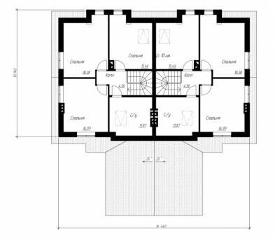
План мансардного этажа


Холл — 4,56 м2
Спальня — 15,46 м2
Спальня — 18,38 м2
Спальня — 16,99 м2
С/у — 11,87 м2
Проект индивидуального таунхауса Проект индивидуального таунхауса Проект индивидуального таунхауса Проект индивидуального таунхауса

Модификации проектов

Внесение изменений и привязка к участку строительства

В любой из проектов от компании VIPplan - Апшеронск по вашему желанию могут быть внесены изменения в материалы стен, материалы наружной отделки дома, а также будет произведена адаптация проекта под конкретный регион строительства (с учетом грунтов региона, геологических особенностей вашего участка и местных климатических условий) - БЕСПЛАТНО !!! (кроме проектов со скидкой и проектов наших партнеров).

Любой из проектов, размещенных на сайте apsheronsk.vipplan.ru мы можем выполнить из требуемых вам строительных материалов: ячеистый бетон (газобетон, пеноблок), керамоблок, кирпич, шлакоблок, бетонный блок, дерево (брус, клееный брус), каркасная технология (деревянный каркас, металлокаркас (ЛСТК)).

Фасад дома и его наружную отделку так же возможно выполнить с применением различных облицовочных материалов: структурной штукатурки, (с утеплителем и без), сайдингом (пластиковый или металлосайдинг), фиброплитами, кирпича.

 
6 Избранные
проекты

Доставка проектов по России: Москва (Московская область), Санкт-Петербург (Ленинградская область), Краснодар, Ростов-на-Дону, Ставрополь, Сочи, Волгоград, Новосибирск, Белгород, Брянск, Воронеж, Саратов, Хабаровск, Астрахань, Нальчик, Владикавказ, Екатеринбург, Тюмень, Самара, Нижний Новгород, Казань, Пермь, Уфа, Челябинск, Красноярск, Ханты-Мансийск, Иркутск, Курган, Оренбург, Омск, Томск, Барнаул, Новокузнецк, Кемерово, Абакан, Чита, Якутск, Южно-Сахалинск, Петропавловск-Камчатский и страны ближнего зарубежья: Белоруссия, Украина, Казахстан