Добро пожаловать на http://vipplan.ru

Випплан Апшеронск - это тысячи проектов домов в нашем каталоге!

Вы всегда сможете найти для себя проект дома вашей мечты! Даже если этого не случилось, мы готовы в любую минуту предложить проект индивидуального дома.

Забыли пароль?
Вы еще не регистрировались?

Перейдите по ссылке ниже на страницу регистрации.

Регистрация...

Внимание!!!

В проектную документацию могут быть внесены изменения любой сложности, в соответствии в Вашими пожеланиями!

Полезные статьи

Приготовление раствора для наливного пола

Если вы хотите чтобы пол получился ровным, наливные полы – лучший вариант. Особое внимание следует уделить приготовлению раствора. А все потому, что после нанесения на цементную стяжку или бетонное основание внести коррективы или изменить что-либо уже не получится. Поэтому к замешиванию раствора стоит подходить очень внимательно....

Правильная изоляция подвала

Какой выбрать материал, как правильно выполнить работу, перед началом изоляции подвала какие подготовительно-строительные работы следует провести и какой момент играет правильное выполнение работ. Последние несколько лет придали много хлопот жильцам домов, увлажнив им подвалы. Этот период показал насколько важно обеспечить надлежащую защиту зданий от грунтовых вод и воздействия влаги....

Проекты домов и коттеджей > Каталог проектов домов > Двухэтажный дом с гаражом на 2 машины и террасой Vg1243

Двухэтажный дом с гаражом на 2 машины и террасой Vg1243

Двухэтажный дом с гаражом на 2 машины и террасой
Зарегистрируйтесь

Проект № Vg1243


Техническое описание
Общая площадь: 187.41 м2
Жилая площадь: 88.14 м2
Высота здания: 10.52 м
Размеры дома: 12.73м×13.5м
Кол-во комнат: 5
Цокольный этаж: нет
Гараж: нет
Мансарда: нет

Kонструкция
Фундамент: Монолитная плита
Перекрытия: Сборные ж/б плиты
Материал стен: Кирпич

Архитектурный раздел
Конструктивный раздел
Инженерный раздел
АР+КР - 60 000 (Со скидкой 20%)
АР+КР+ИР - 125 450 (Со скидкой 50%)
Проект индивидуального двухэтажного жилого дома с размерами 12,73 x 13,50 м. Наружная отделка здания – облицовочный кирпич. Цоколь – искусственный камень Фундамент – монолитная плита под всей площадью дома. Наружные стены запроектированы из: забутовочного кирпича, утеплителя и облицовочного кирпича. Внутренние стены и перегородки - из забутовочного кирпича. Перемычки - монолитные и сварные из профиля проката. Перекрытие межэтажное – сборные ж/б плиты перекрытия. Пол этажа – пол по грунту. Крыша - четырехскатная. Материал кровли – натуральная черепица. Окна - металлопластиковые, выполненные по индивидуальному заказу. Лестница выполняется по индивидуальному заказу.
Генплан застройки участка / Паспорт проекта 7000 руб / 10000 руб
Инженерный раздел (полный) 65450 руб (93500 руб)
Смета на строительство 46750 руб
Теплотехнический расчет материалов стен Бесплатно
Стоимость проекта со незначительнми изменениями 70300 руб
Стоимость проекта со средними изменениями* 84400 руб
Стоимость проекта со значительными изменениями** 88100 руб

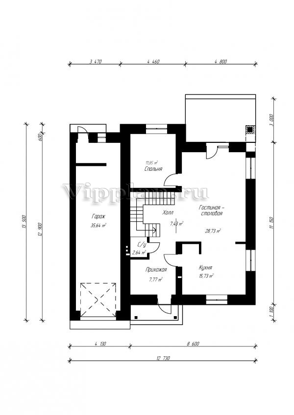
План первого этажа


Гараж — 35,64 кв м
Прихожая — 7,77 кв м
Холл — 7,43 кв м
С/у — 2,64 кв м
Спальня — 11,85 кв м
Кухня — 15,73 кв м
Гостиная — 28,73 кв м

Двухэтажный дом с гаражом на 2 машины и террасой

Двухэтажный дом с гаражом на 2 машины и террасой

План второго этажа


Спальня — 12,29 кв м
Спальня — 17,66 кв м
Гардероб — 4,32 кв м
Гардероб — 4,32 кв м
Холл — 9,19 кв м
С/у — 12,23 кв м
Спальня — 17,61 кв м
Двухэтажный дом с гаражом на 2 машины и террасой Двухэтажный дом с гаражом на 2 машины и террасой Двухэтажный дом с гаражом на 2 машины и террасой Двухэтажный дом с гаражом на 2 машины и террасой

Модификации проектов

Внесение изменений и привязка к участку строительства

В любой из проектов от компании VIPplan - Апшеронск по вашему желанию могут быть внесены изменения в материалы стен, материалы наружной отделки дома, а также будет произведена адаптация проекта под конкретный регион строительства (с учетом грунтов региона, геологических особенностей вашего участка и местных климатических условий) - БЕСПЛАТНО !!! (кроме проектов со скидкой и проектов наших партнеров).

Любой из проектов, размещенных на сайте apsheronsk.vipplan.ru мы можем выполнить из требуемых вам строительных материалов: ячеистый бетон (газобетон, пеноблок), керамоблок, кирпич, шлакоблок, бетонный блок, дерево (брус, клееный брус), каркасная технология (деревянный каркас, металлокаркас (ЛСТК)).

Фасад дома и его наружную отделку так же возможно выполнить с применением различных облицовочных материалов: структурной штукатурки, (с утеплителем и без), сайдингом (пластиковый или металлосайдинг), фиброплитами, кирпича.

 
6 Избранные
проекты

Доставка проектов по России: Москва (Московская область), Санкт-Петербург (Ленинградская область), Краснодар, Ростов-на-Дону, Ставрополь, Сочи, Волгоград, Новосибирск, Белгород, Брянск, Воронеж, Саратов, Хабаровск, Астрахань, Нальчик, Владикавказ, Екатеринбург, Тюмень, Самара, Нижний Новгород, Казань, Пермь, Уфа, Челябинск, Красноярск, Ханты-Мансийск, Иркутск, Курган, Оренбург, Омск, Томск, Барнаул, Новокузнецк, Кемерово, Абакан, Чита, Якутск, Южно-Сахалинск, Петропавловск-Камчатский и страны ближнего зарубежья: Белоруссия, Украина, Казахстан